Planning Application for 173 new homes School Lane

29th of July, 2022

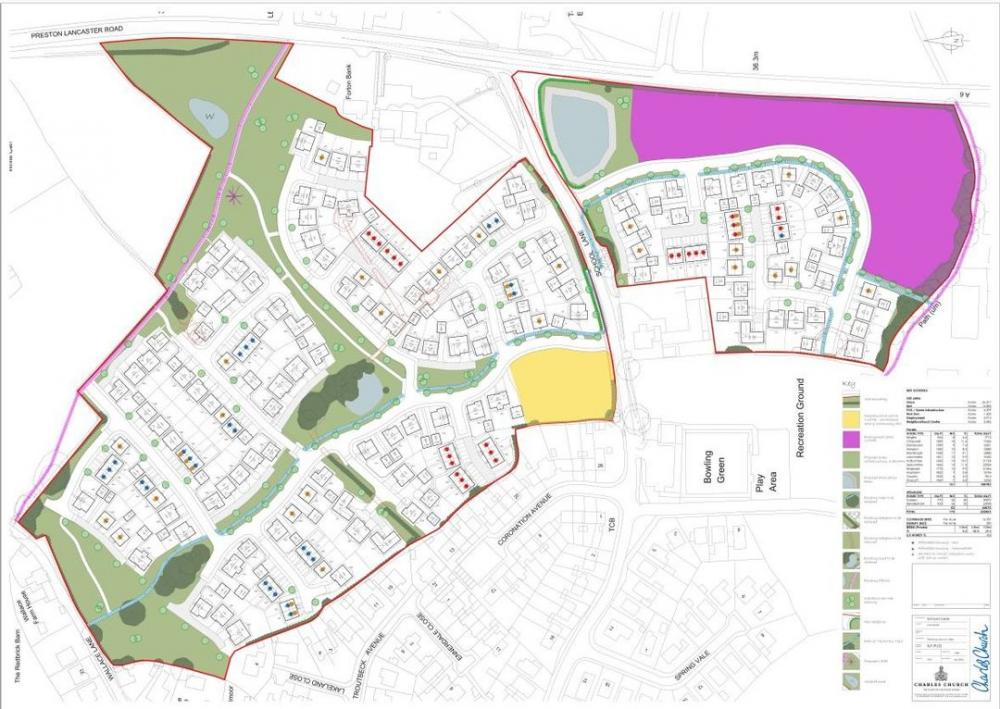
The planning application is now in for the 173 homes to be built on School Lane. This can be viewed at Wyre Borough Council Planning and the application number to search is - 22/00735/RELMAJ https://publicaccess.wyre.gov.uk/online-applications/ ...

Read Full Article

Bin Collection Forton

28th of July, 2022

Wyre Council's Bins, waste and recycling Forton’s bins are collected by Wyre Council, please find a quick note on local bin collection below. Find out what goes in each bin Colour coded guide of what goes in each container: ...

Read Full Article

Road Safety Concerns

18th of May, 2022

For anyone wanting to raise concerns about traffic concerns/dangerous driving etc here are the key contacts for this area and their email addresses. I would urge you to keep following up if you do not get a response. Some of the key contacts have bee...

Read Full Article

Planning Report May 2022

10th of May, 2022

Read Full Article

Chairman's Report May 2022

10th of May, 2022

Read Full Article

Road Safety in Forton

5th of January, 2022

Road Safety in Forton  If you experience Road Safety issues in Hollins Lane or anywhere else in Forton Report it on 101 https://reportitonline.lancashire.police.uk/NdsPublicEngagementUi/index?force=lancashireconstabulary It would be ...

Read Full Article